Rode Molenstraat 20, Joure













































In een rustige straat, in de wijk Zuiderveld, staat deze sfeervolle hoekwoning uit 1968. Hier woon je heerlijk rustig met veel voorzieningen binnen handbereik, zoals supermarkten, sportvoorzieningen, scholen, etc. Door de hoekligging heeft de woning veel privacy in de tuin met de mogelijkheid om de auto te parkeren op eigen terrein.
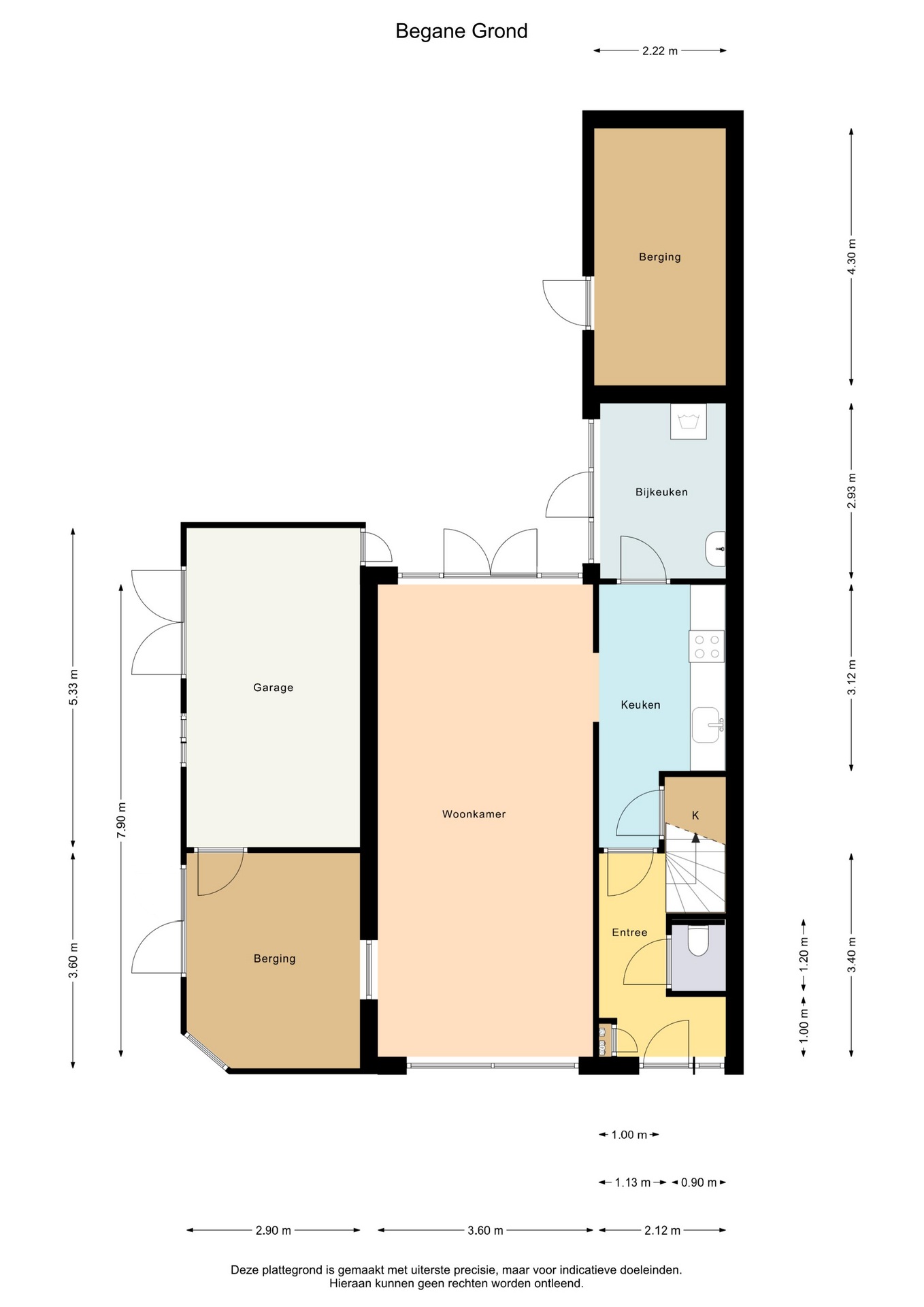
Indeling:
Entree, hal met meterkast, toilet en trapopgang, toegang naar de half open keuken met trapkast en een keukenopstelling voorzien van een 4 pits gaskookplaat, magnetron, oven, afzuigkap, koelkast en een vaatwasmachine. Aansluitend is de bijkeuken met de opstelling van de wasmachine, droger, een spoelbak en toegang naar de tuin. Vanuit de keuken ga je naar de woonkamer met openslaande deuren naar de achtertuin. Via deze tuin is de berging, de garage en een extra berging te bereiken.
1e Verdieping: overloop, badkamer met douchehoek en wastafel met meubel, 4 slaapkamers welke allen voorzien zijn van vaste kastruimte en 2 slaapkamers hebben een wastafel.
2e Verdieping: op de overloop is de schuiftrap naar de ruime zolderberging met de opstelling van de CV-ketel.
Algemeen: bouwjaar 1968, gebruiksoppervlakte wonen 102 m², inhoud 573 m² en perceeloppervlakte 246 m². De woning heeft een energielabel C en is voorzien van houten kozijnen met dubbel glas, gevelisolatie en dakisolatie. In de kruipruimte is bodemisolatie aangebracht. De verwarming is middels radiatoren en een CV combi-ketel (Intergas uit 2018).
De beschutte achtertuin is keurig onderhouden en heeft een goede zonligging. Vanuit de tuin zijn beide bergingen te bereiken alsmede de garage met dubbele deuren naar de oprit.
Ben je nieuwsgierig geworden naar deze fijne woning in Joure? Wacht dan niet te lang en plan snel een bezichtiging.
Aan de in deze aanbieding vermelde maten, oppervlakten en overige gegevens kunnen geen rechten worden ontleend. Alle genoemde afmetingen en m² zijn indicatief en dienen uitsluitend ter illustratie. Koper wordt geacht de opgegeven informatie zelf te (laten) verifiëren.
Aanvaarding kan spoedig.