Visstraat 21, Joure

€ 325.000 k.k.
Verkocht onder voorbehoud
Deel dit via:

In een van de meest gewilde straten in Oud Joure, op loopafstand van het centrum, staat deze gemoderniseerde vrijstaande woning uit 1920. De woning heeft een beschutte en rustige ligging, terwijl alle centrumvoorzieningen op loopafstand zijn.

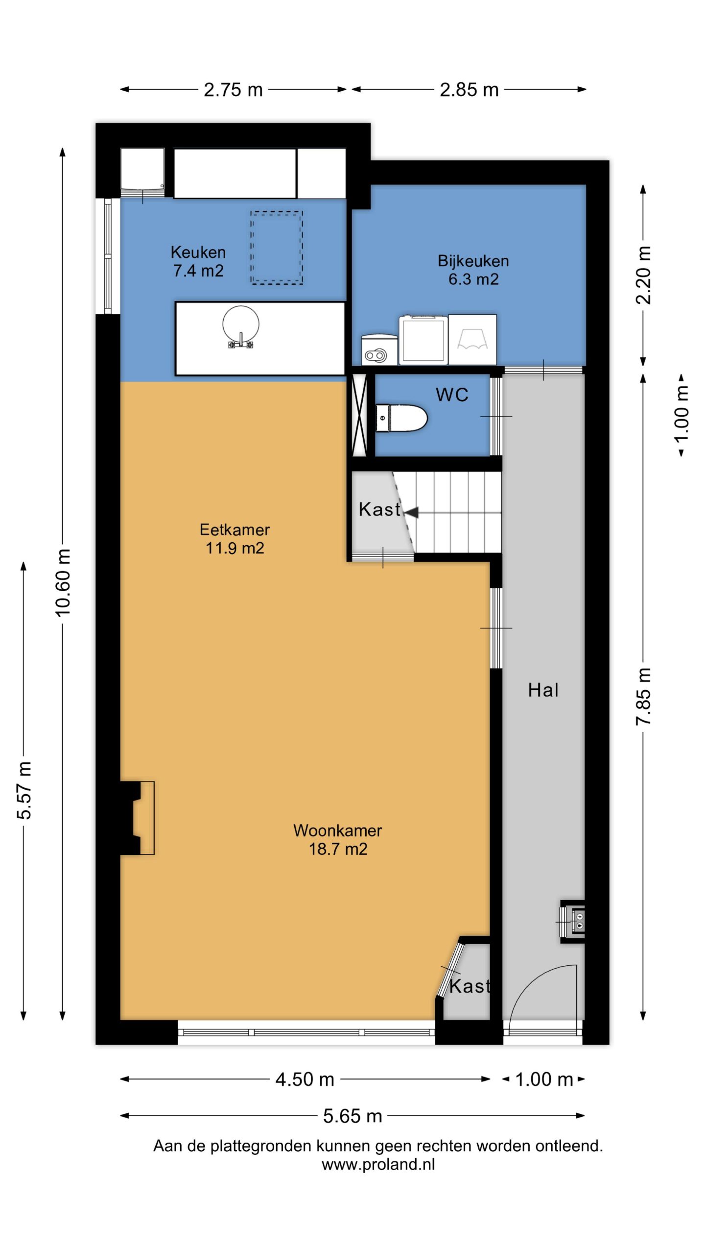
Indeling: entree, hal met meterkast, trapopgang, toilet en toegang naar zowel de woonkamer als de bijkeuken. Knusse en gezellige woonkamer voorzien van pelletkachel en aircosysteem. Aansluitend is de open moderne keuken met koelkast, vriezer, 5 pits gaskookplaat met afzuigkap, oven en een koffiemachine, de bijkeuken heeft een wasmachine-en drogeraansluiting. De CV-ketel is ook gesitueerd in de bijkeuken.
1e Verdieping: overloop, 3 slaapkamers, badkamer met ligbad, douchehoek en wastafel. Vanaf de slaapkamer aan de achterzijde is het ruime dakterras te bereiken waar het heerlijk genieten is van de middag- en avondzon.

Algemeen: bouwjaar 1920, gebruiksoppervlakte wonen ± 94 m², inhoud ± 350 m³ en perceelgrootte is 120 m². De woning wordt verwarmd door airco systemen. De pelletkachel in de woonkamer geeft heerlijke warmte en een gezellige sfeer. In de badkamer en bijkeuken zijn radiatoren die aangestuurd worden door de CV-ketel uit 2022. In 2024 zijn er 4 stuks zonnepanelen op het dak geplaatst en is in de woonkamer en op één slaapkamer een airco geïnstalleerd voor zowel koele als warme lucht. Verder is er gevelisolatie, dakisolatie en grotendeels HR++ glas aanwezig in de woning.

Deze sfeervolle, vrijstaande woning ligt op een fijne plek in Joure, is goed onderhouden en is uitermate geschikt voor jonge stellen en starters op de woningmarkt. Wil je de sfeer van deze woning zelf ervaren? Maak dan snel een afspraak voor een bezichtiging.

Aan de in deze aanbieding vermelde maten, oppervlakten en overige gegevens kunnen geen rechten worden ontleend. Alle genoemde afmetingen en m² zijn indicatief en dienen uitsluitend ter illustratie. Koper wordt geacht de opgegeven informatie zelf te (laten) verifiëren.